9.7m×9.8m逆天设计!七层商住两用自建房,办公居住两不误
哲东自建房设计 第130期 | 自建房设计探索与分享
家人们谁懂啊!占地不足百平,竟能挖出七层商住两用黄金空间!
9.7米宽×9.8米深,大门朝西北,两侧邻居紧贴,东北还藏着小厢房,这样的苛刻条件,照样能打造出办公、居住双优的全能户型!


✅ 规划buff叠满:二层以上入口侧可悬挑1.5米,直接解锁更多实用面积,空间利用率瞬间拉满!
✅ 分层功能精准拿捏
首层+夹层:楼梯电梯靠边站,局部挑空设计,大堂通透敞亮,商铺引流属性拉满,生意旺到爆!


2-5层:纯办公区域,格局方正动线清晰,打工人效率直接up!办公楼梯外侧专属阳台,化身吸烟区,细节超贴心;阳台外装空调挑板,中央空调稳稳安放,外立面加百叶遮蔽,颜值与实用并存!

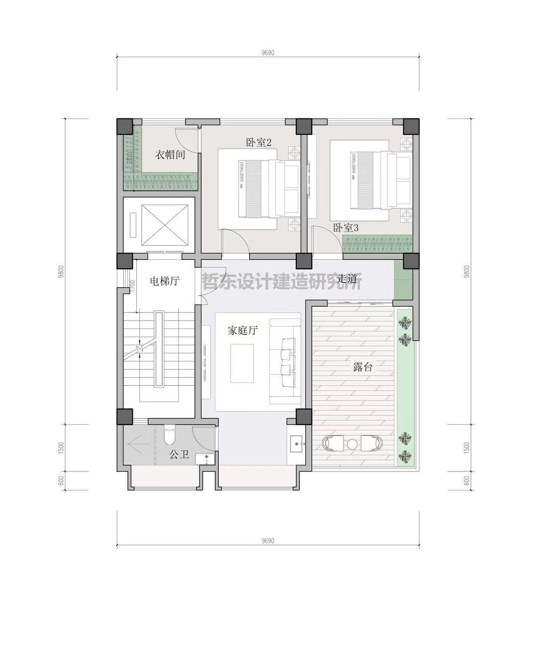
6-7层:神仙居住层!六层电梯入户即享餐厨客一体大空间,还带一间舒适卧室;厨房精准卡位东南角,符合风水布局,楼梯下方巧设卫生间,每一寸空间都不浪费,局部凸窗还能拓展视野!七层双卧带露台,喝茶赏月晒暖阳,生活幸福感爆棚!




专业设计就是牛!兼顾风水布局与功能实用,小占地也能玩转出大乾坤!
有同款自建房设计需求?欢迎私信垂询,让你的宅基地焕发超强价值!
#自建房设计 #商住两用自建房 #小户型大利用 #农村自建房