龙华红山,联发新澍雅居预计2026年一季度取证入市,户型相当炸裂,面积有69平的2+1房1卫,79-82平的3房2卫,99平的4房2卫户型,共332套房源,价格方面可以参考附近前期入市的联发臻著雅居,备案均价7.3万/㎡,当时折后均价约6.4万/平,期房精装交付,目前营销中心暂未开放,户型图供参考



联发新澍雅居,由联发集团打造,总占地面积约1.09万㎡,总建筑面积约4.29万㎡,计容建筑面积约3.37万㎡,容积率2.5,绿化率32.49%,共由3栋16-25层高住宅组成,其中1栋1/2单元住宅25F,1栋3单元住宅16F。
项目1栋1/2单元2梯6户,1栋3单元2梯4户设计,地下室有1层,规划360个车位,车位比1:1.08。

69㎡的3房2厅1卫,设计的是竖厅格局,客厅3米开间,LDKG+X空间一体化,S墙设计预留冰箱卡槽位,动静分区,三开间朝南,主卧+1个次卧都是双飘窗设计,次卧带1个设备平台放空调机位,U型厨房,卫生间三段式干湿分离,得房率:100%(包含赠送),西南朝向。

78㎡的3房2厅2卫,设计的是竖厅格局,客厅3.4米开间,LDKG+X空间一体化,S墙设计预留冰箱卡槽位,动静分区,三开间朝南,主卧+1个次卧都是双飘窗设计,次卧带1个设备平台放空调机位,U型厨房,卫生间干湿分离,公卫带1个设备平台可日常使用,得房率:100%(包含赠送),西南或东南朝向。

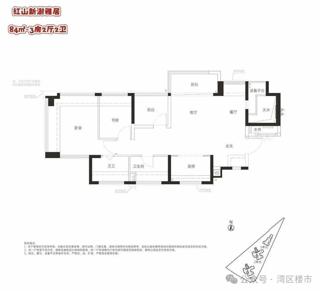
84㎡的3房2厅2卫,设计的是横厅南北通透格局,客厅3.4米开间,LDKG+X空间一体化,动静分区,主卧南北通设计,餐厅位带1个设备平台,U型厨房,卫生间干湿分离,得房率:100%(包含赠送),阳台东北朝向。

99㎡的4房2厅2卫,设计的是横厅南北通透格局,客餐厅5.35米开间,LDKG+X空间一体化,进门独立入户玄关,五开间朝南,主卧大套间设计,餐厅位带1个设备平台,U型厨房,卫生间干湿分离,得房率:100%(包含赠送),阳台东南朝向。


楼盘基础信息
1、开发商:深圳联粤房地产开发有限公司
2、物业公司:深圳联粤物业服务有限公司
3、物业管理费:待定,参考5.3元/平
4、总占地面积:1.09万㎡
5、总建筑面积:4.29万㎡
6、容积率:2.5
7、绿化率:32.49%
8、产权年限:2025年6月-2095年6月,住宅70年
9、总户数:332户
10、总栋数及楼高:3栋,16-25层
11、层高:3米
12、梯户比:1栋1/2单元2梯6户,3单元2梯4户
13、车位数:360个
14、车位占比:1:1.08
15、交房时间:期房待定,预计2028年中下旬。
16、交房标准:精装

改地块经过30分钟65轮竞争,最终联发以12.12亿元斩获龙华A817-0619宗地,溢价46.6%。
此次土拍,共吸引8家知名房企报名参拍,包括1号中铁、6号绿城、8号招商、19号龙华建设、25号国贸、27号中能建、66号联发、68号中海。
地块容积率仅2.5,相比周边普遍容积率4.0以上的新房,居住舒适度更高,且无须配套租赁住宅、安居房等公共住房,居住圈层更为纯粹。
地块位于红山-上塘板块,一路之隔就是金地上塘道,距离四号线上塘站约800米,距6号线上芬站约650米。

红山-上塘板块是龙华最热门置业区域,配套丰富,居住氛围浓厚,周边有金地上塘道、星河传奇、深业颐樾府等大型社区,还有星河CoCo Garden、上塘荟、简上体育综合体等配套。
1:学区挺好,小学学区划分在华东师范大学附属龙华未来小学,中学学区划分在龙华实验学校。

2:片区少有的低容积率,地块容积率仅为2.5,限高80米,预估26层左右。不过居住生舒适度会差些,本身地块小又呈三角形,不太好规划利用,也不太合适做住宅地块。周围视野遮挡多。
3:纯商品房,小区体量小,自身配套弱。地块占地10898.05㎡,建筑面积27200㎡,其中住宅26600㎡,无回迁和保障房,500平社区底商。估计也就规划两三栋住宅,层高26层左右。
不过周边都是大型社区,居住氛围浓厚,距离星河CoCo Garden也只有300米,平时购物,生活都很便利。
4:不限价,不限户型。类似的小地块之前华润紫云府,商品房最高限价7.3万/㎡,参考当前的市场情况,未来入市价格预估在6-7万。市场主流户型约为80-120平的三至四房,也不排除会设计一些小户型产品。
起始楼面价3万/㎡,不设封顶价,对于红山板块已经很多没有住宅用地出让来讲,估计会吸引不少房企参与竞拍!
更多详细信息请咨询13620951611微信同步