编译:专筑网小RYANMAR TOKYO商业办公大楼YANMAR TOKYO是一个逐步壮大的品牌,该项目是该品牌位于东京

编译:专筑网小R
YANMAR TOKYO商业办公大楼YANMAR TOKYO是一个逐步壮大的品牌,该项目是该品牌位于东京办事处的重建,车站东部是商业区Yaesu,这里是江户时代的运河物流中心,现在已经成为了很受欢迎的区域,有着良好的发展潜力,几个重要的重建项目都聚集于此,这座建筑连接了东京站和Yaesu地区,是YANMAR品牌的核心,该公司的主营业务是在全球范围内开发“食品生产”和“能源转换”技术,其室内外环境空间的设计需要具有一定的标志性。




这是一艘如船一般的建筑,似乎正在向着世界扬帆起航,建筑面向东京站一侧覆盖着百叶窗,在地面层和地下层,立面的形态模仿着船头和帆,建筑师的目标是通过强烈的形式感,同时结合纯粹的象征意识,以及场地和道路的关系,场地的夹角形态也促进了建筑的构成,Yaseu是Edo Castle下方曾经的运河区域,同时也是Yanmar的海军领域区域,因此船一般的设计似乎在向世界呐喊。




南侧立面是品牌的公共空间,这里有着面积约为800平方米的大型百叶绿化体系,人们在办公区域的任何位置都能够看到绿植系统,来自南侧相邻建筑的目光,也可以直达绿植墙体,这给城市带来了自然的环境体系。


下部楼层的三层中庭绿化,应用了水培技术,LED灯光不仅仅照亮了整个中庭,同时也成为了植物的促生长装备,灯光在一天中可以随时改变色温,这样的亲生物空间在东京站附近很少见到,在这里人们可以自由进出,甚至会有一些差旅人士希望在此度过休闲时光,绿色的中庭院落,结合大规模的绿植立面,这成为了Yanmar品牌与自然互动的特征,空间中的饰面应用了天然材料,诸如木材地板和天花板上的百叶,也代表了自然元素。

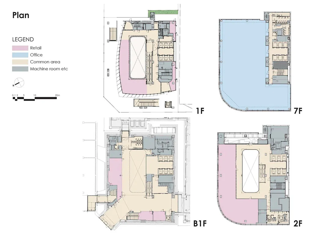
这座建筑还有着许多特色空间,比如Yanmar品牌十分认可日本水稻种植的重要意义,这也成为了项目特点,建筑一层是一个展厅,二层则是强调大米和农业的餐厅,中庭构成了连续的纵向空间氛围,这些都是Yanmar品牌需要传达的内容,人们通过地下一层的入口和电梯厅能够看到中庭空间,办公室的员工们也随时能够感受到各项活动和不同的灯光效果,公共空间成为了建筑的重要特征,这也成为了东京站区域办公楼的设计标准。



生活展厅也同样具有环境意识,建筑使用了节能高效的设备系统,这也是Yanmar公司的产品,比如通过燃气驱动的热电联产系统、应用高效燃气热泵空调的加热冷却系统,目的是满足环保特性,除此之外,这座建筑还融合了防灾、环境,以及生活舒适特征的最新技术,比如楼层之间的抗震结构、地下一层的临时疏散广场、墙体太阳能面板、风能发电,以及应用了辐射和穿孔天花板的自然通风系统。







建筑设计:Nikken Sekkei类型:办公 商业面积:21775 m²