2025年10月28日,沈阳椿熙国际康养综合体项目在沈阳经济技术开发区启动,标志着全国首个集养老产业集群孵化、银发进飞机
2025年10月28日,沈阳椿熙国际康养综合体项目在沈阳经济技术开发区启动,标志着全国首个集养老产业集群孵化、银发进飞机标准化建设与银龄内容首发经济于一体的综合示范项目正式落地。

(图片来源于铁西报)沈阳椿熙国际康养综合体项目由沈阳中德园开发建设集团有限公司投资建设,位于沈阳经济技术开发区二十二号路南、浑河十街以东、中央大街以西、南临细河,总占地面积25万平方米,总建筑面积约37.5万平方米。就是在京沈医院(原积水潭医院)南边,靠近地铁三号线工业大学站,京沈医院将为这个项目提供强有力的医疗支撑,构建“医、康、养、护”一体化服务体系,打造区域医养结合示范样板。

(图片来源于铁西报)首期将建设照护中心与活力社区两大功能区,整体全日照护、日间照料、医疗康复、长者助餐、居家上门及旅居康养等六大服务。一期项目建成后预计提供床位超过1000张。

(图片来源于网络)

(图片来源于网络)在9月份的时候,中德开健康养老产业发展有限公司拿下这块地,土地用途为其他社会福利用地,10月末启动仪式,在2026年1月13日,这个项目一期的规划许可批前公示进行公布。

(项目效果图图片来源于网络)

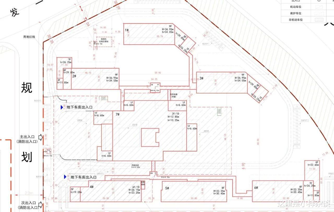
(图片来源于网络)一期项目共有7栋建筑物,南北两侧共有6栋8/9层活力社区用途建筑。这个项目真的要来了,北边就是医院,南边就是细河,地铁站就在旁边,旁边还有283、306、307路公交。北边1.7公里外就是经济技术开发区商业中心,经开区商业氛围最浓厚的中央大街沈辽路路口,同时距离杉杉奥莱也不远,位置在经济技术开发区还是不错的,甚至应该是经济技术开发区位置最好的位置了,医院、地铁口、商场都不远。目前沈阳已经是全国老龄化人口比例较高的城市了,老龄人口占比超过了百分之31,养老服务需求和发展空间巨大。