看过她家才知道:什么叫实用与美观并存,一个玄关就在小区出名了
家,不需要迎合所有人的审美, 无论什么模样,只要长在自己审美之上就好,不做过多复杂的设计,贴近生活的装修才更适合生活。
今日精选案例是一个颜值和实用并存的中古氛围新家,整个装修没请设计师,全靠女主自己学习和领悟。总结就是,风格不重要,只要干净、温馨就好。前期简单的硬装完,看不出个所以然也没关系,后面根据自己的审美来布置和改造,慢慢就可以找到感觉,房子也就越住越舒服了。
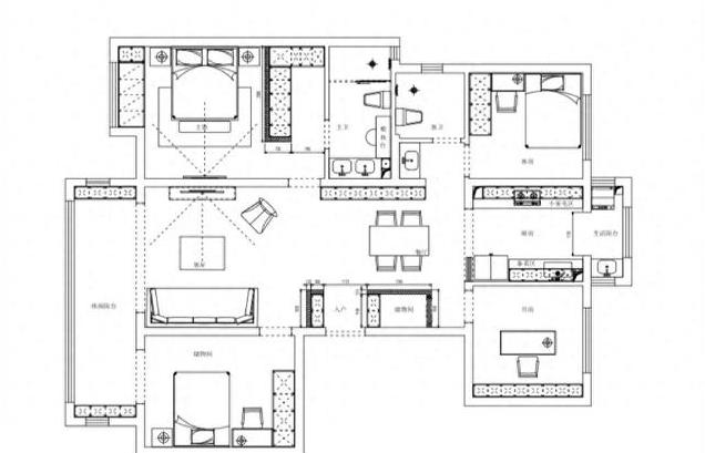
房屋信息

建面143㎡,套内120㎡,四室两厅两卫 客厅开间3.8m,层高2.7m,是个典型的四叶草户型。
玄关

因为不喜欢餐厅、客厅、换鞋区融为一体, 所以就想尽办法砌墙造了个玄关, 外长347cm,外宽102c?m, 拱门最高点233cm,宽105cm。


餐边柜到玄关墙面的距离245cm ,有了玄关,得到的大概就是回家的仪式感。 门口做了换鞋的落尘区,比餐厅的地面矮一点点,方便摆放地毯,空间区域的划分也更明显。

玄关一侧是储物间,长170cm宽90cm, 放置一些不常用的杂物, 出入门方便拿取的物品都在这里,看着虽小,但也足够能装。
客厅

硬装很简单,以白色为主 双眼皮吊顶搭配石膏线,空间有了层次感, 墙面只刷了乳胶漆,大白墙果然耐看 通铺木纹砖既温馨又容易打理。

软装灵活搭配 ,尽量做到风格、色系统一 。女主很喜欢复古调的木质家具, 觉得这些家具都散发着被时间沉淀下来的美 。在后期入住后,淘了很多这样的家具放进客厅里,让客厅的中风氛围一天比一天浓郁。


电视墙没有做任何的造型,直接刷了一个乳胶漆,连电视柜都是在后期买成品的,这样装修的好处特别多,比如可以根据自己的心情更换家具来调整居家氛围感,在前期硬装装修的时候,需要的造价也更低一些。

一些简单又有意境感的绿植,可以讲室内的居住空间装饰得更灵动自然,电视柜旁的五斗斗柜上摆放的装饰画上,画有比较写实的竹子,像旁边绿植的影子一样,搭配上一盏小台灯,仿佛电影里的高级居家一角。


门口增加一个独立的玄关,不仅是让进门的区域多了许多的仪式感,更是对客厅和旁边卧室做了一定的遮挡,解决了四叶草户型隐私性很差的问题。
餐厅


餐厅在除去了一个玄关和储物间后,剩下的空间做了常规的装修和布置。整面墙的餐边柜,小巧实用的小餐桌,以及顶面装饰性十足的吊灯,兼顾实用和美观。

不想一进门就看到可能会有些乱的厨房,也不想让餐厅的采光太差,就给厨房安排了一个长虹玻璃的推拉门,超白玻的长虹玻璃,透光不透人,用在这里还时尚又高级。

餐边柜中间的位置做了一个镂空的台面,可以当作水吧台或者是西厨区使用,在这里冲个咖啡,装下简餐都很方便。
厨房

双一字型,两边台面同时利用,加大储物空间,备菜区,洗菜区,烹饪区,装盘区,家电区,只要布局合理,做饭也不会手忙脚乱。
主卧

对于普通家庭的普通装修来说,灯光氛围的营造是很重要的,简直就是花小钱干大事。比如在飘窗的丁目加两个筒灯,就能拥有一个氛围感超好的小区域了。


卧室的空间,就想要更温馨放松一些,墙面材质就换成了墙布,还做了AB版的搭配,床头背景墙用石膏线分成了上下两个部分,上面部分贴上了植物纹理的墙布,让卧室的装修档次提升了几个档。

床尾的位置空着显得有些浪费,在网上淘了一组斗柜放着这里,增加卧室整体收纳空间的同时,还能起到很强的装饰效果。
衣帽间

对于女生来说,一个独立的衣帽间是很有必要的,不管是衣物、包包还是床上用品,都需要很多的空间来收纳。
儿童房


儿童房没有做太幼稚的装修,这样可以保证孩子可以从小住到大,满足孩子不同成长时期的不同需求。在年龄比较小些的时候,布置一个孩子喜欢的小物件进去,就可以让低年龄段的孩子爱上这个房间。

120㎡客餐厅一体的家,装修时果断舍弃六米大阳台,让给儿童房一小部分,拥有小阳台和落地窗的女儿房间,也是女主儿时的梦中情房。

被隔出来的阳台目前长度1.9m宽1.8m,一侧做了满墙收纳柜,用来收纳玩具和一些书籍,有孩子的家庭一定要学会空间利用。