今天分享的案例是52㎡的两居室装修,空间虽然紧凑,但整体设计温馨,实用性很强。小空间大设计,再紧凑的家,只要设计得好,也能温馨浪漫!

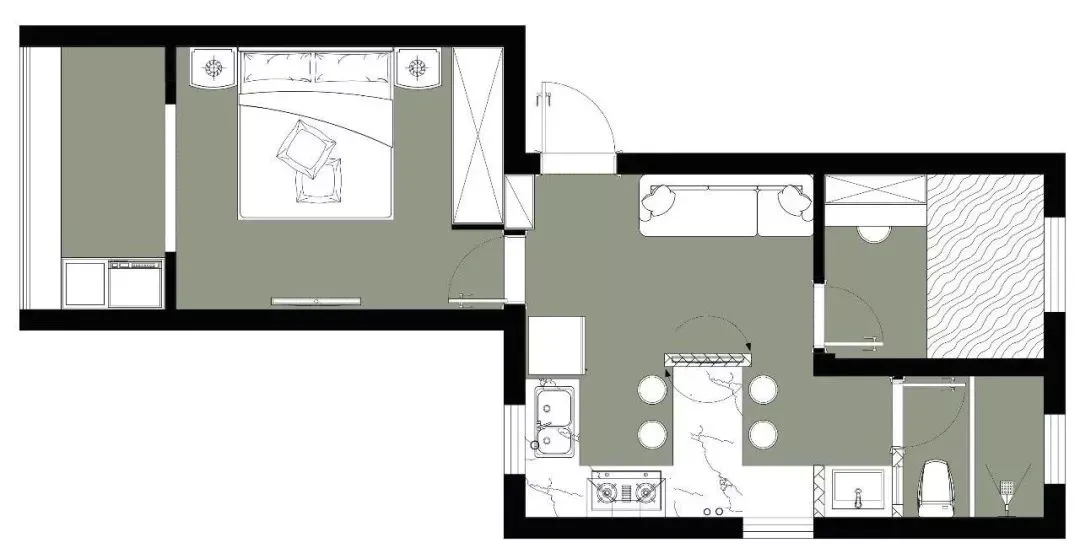
户型图

房屋面积52㎡,各个空间都非常紧凑。但设计师通过巧妙的设计,打造温馨的小两居。
玄关

玄关设计入墙式鞋柜,中间留出开放式展示区,摆放业主收藏的装饰品,提升玄关区整体颜值。
客厅

长条布艺沙发+木质张贴的电视墙,客厅布局较为紧凑。沙发侧面墙安装隔板架,收纳客厅小物件,实用性极强。

木质电视墙作为客餐厅之间的隔断,旋转式电视机设计巧妙,使用更方便。

电视机上方挂一只极简的圆形挂钟,避免空间过于单调。
餐厨区

客餐厅整体设计隔而不断,半开放式布局避免小空间带来的压抑感。

餐厨一体化设计,小餐桌也可以充当厨房操作台,动线流畅,简单实用。

厨房墙面上的收纳架,可以放置锅盖,也能摆放绿植,细节满满。

大理石的桌面搭配精美的餐具,再加上灯光的衬托,用餐氛围极佳。
卧室

卧室采用浅灰色床头背景墙,搭配原木质感的床铺,还有灰色的床单和窗帘,典型的北欧风设计,清新浪漫。

床头背景墙挂一幅横幅装饰画,同时摆放几个北欧风抱枕,空间活泼又舒适。
次卧

次卧一张小床靠窗摆放,三角形图案的黄灰两色碎花床单,让空间显得活泼。

床头侧边摆一张小书桌,墙面装一块搁板,角落摆一盏黑色小台灯,打造轻松的办公氛围。
阳台

阳台以哑光浅灰色的瓷砖为主,洗手台与洗衣机组合设计,整洁大方,实用性很强。
卫生间

洗手盆往外移,精致的小圆镜与台面上的花瓶搭配,空间清新时尚。

卫生间面积较小,以浴帘+挡水条作为干湿区隔断,格局通透明亮。