主卧布局的设计关系着卧室收纳与休闲空间,尤其是主卧有独卫的情况下,需要兼顾美观度与实用性,来看下常见布局,给大家作为参考。
内凹卫生间

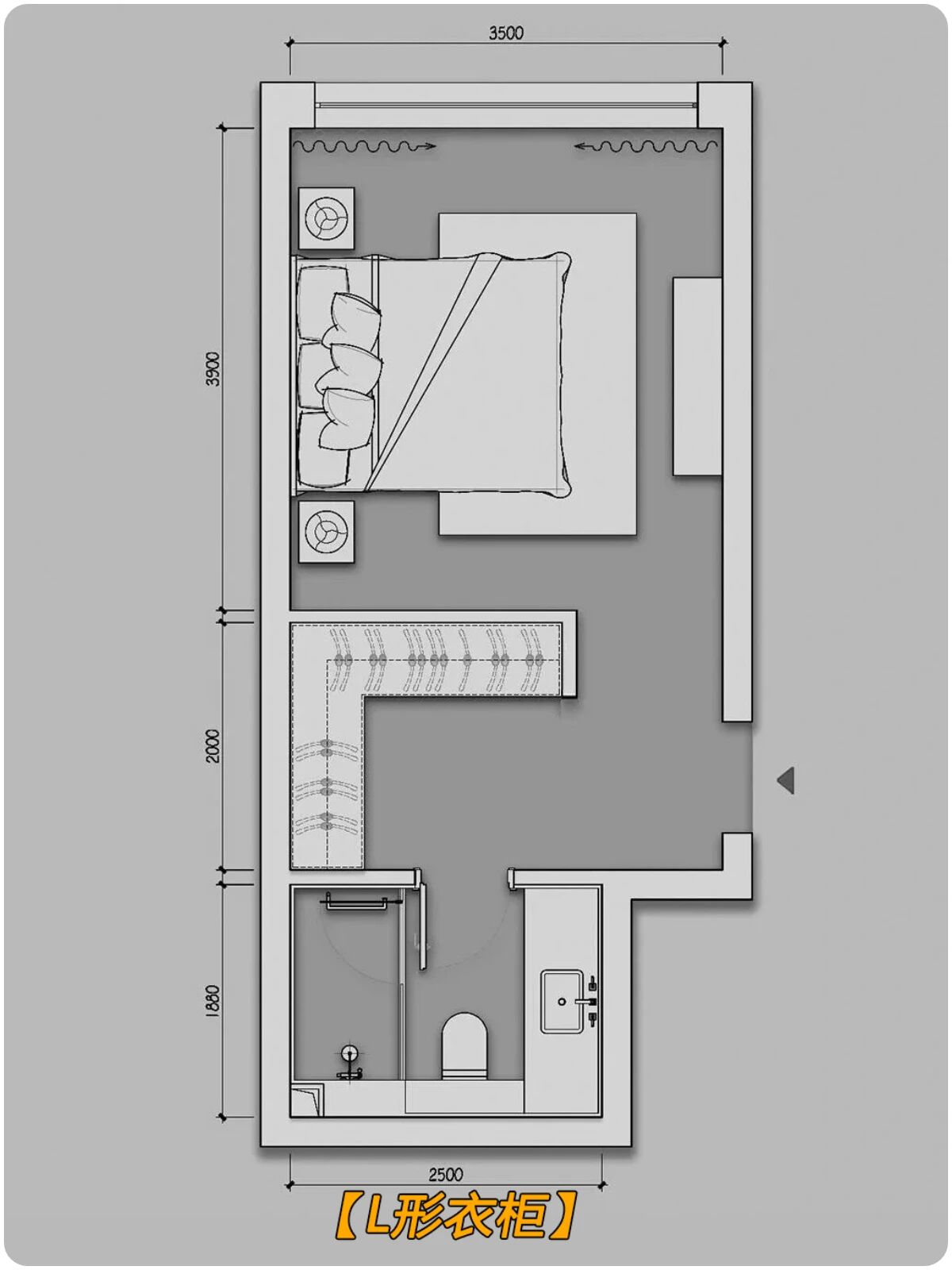
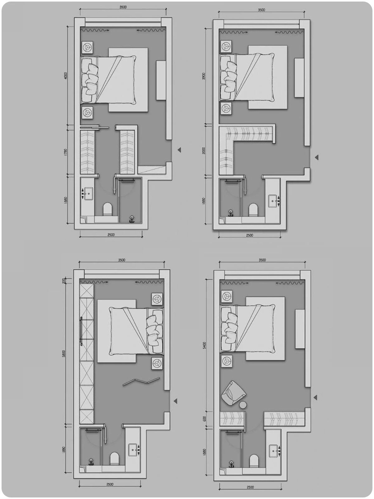
▲方案1
优点:收纳空间多,格局上更通透 ;
缺点:更适合通风的空间。

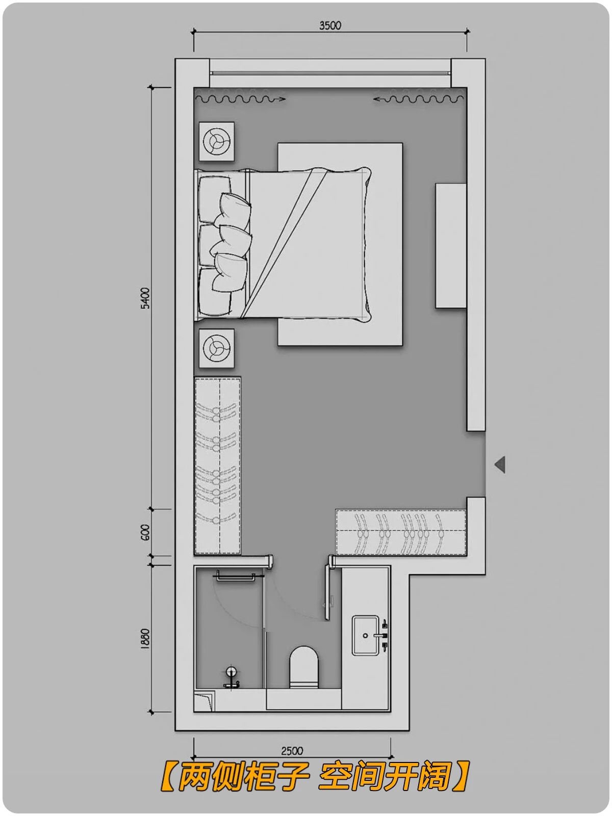
▲方案2
优点:收纳空间多,独立的隔断区域,适合大户型 ;
缺点:视觉上显狭窄,采光和通风不好,要注意防潮。


▲方案3
优点:空间更优化,所有户型可用;
缺点:收纳空间有限。

▲方案4
优点:房间格局显大显通透,动线流畅
缺点:卫生间门对床,床尾距离要在1100mm以上

▲4种布局方案各有优劣,大家可以根据自己的喜好和户型空间选择。
非内凹卫生间

▲方案1
优点:收纳空间多,独立的隔断区域,适合大户型 ;
缺点:视觉上显狭窄,房间采光和通风不好,要注意防潮。

▲方案2
优点:收纳空间多,独立梳妆台,适合大户型 ;
缺点:拆除卫生间空间,功能缺失。

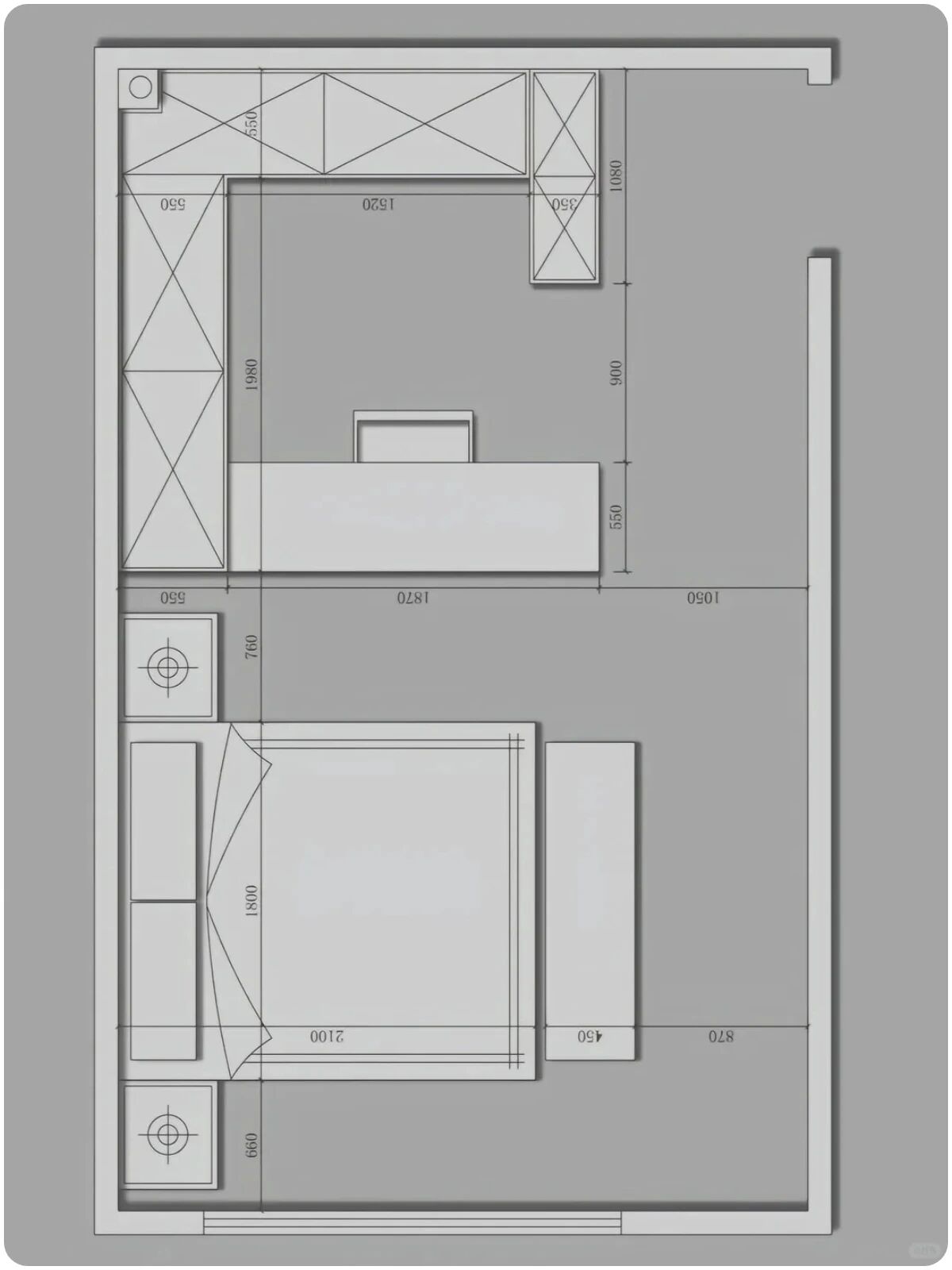
▲方案3
优点:卫生间三分分离设计,互不干扰 ;
缺点:L型衣柜遮挡光线,视觉上稍显拥堵。