很多济南市民熟悉的槐苑广场,要改造成文化体育公园。近日,公园部分的建设方案正式亮相,还配备大规模地下停车场。

槐苑文化体育公园项目位于济南市槐荫区,经十路以北,市立五院以东。该项目在提升公园绿地与体育场功能的同时,对地下空间进行复合利用,建设地下智慧停车及配套商业设施,增加停车位供给,同时打造以儿童友好为主题,以文化、游憩、运动、交通、商业五大功能为核心的复合型城市综合体。

本次公布的规划主要位于槐苑广场及华联超市(广场店)原址,用地面积约3.67公顷,地上主要为绿地公园、活动场地、多个大型采光天窗,以及近3700平米的新建设施(包含游客服务中心、车库出入口、公厕及其他配套设施)。

由于新的文化体育公园包含了原先华联超市(广场店)的部分,因此总的面积比槐苑广场差不多扩大了一倍。另外,原槐苑广场北侧的许多高大树木被保留,将成为公园绿地的一部分。

除了地上,该项目还将建设超过7万平方米的地下部分。其中,地下一层约2.31万平方米,主要为商业,由主力店和大量商铺组成。这个地下商业还能否将超市招回来,需拭目以待。

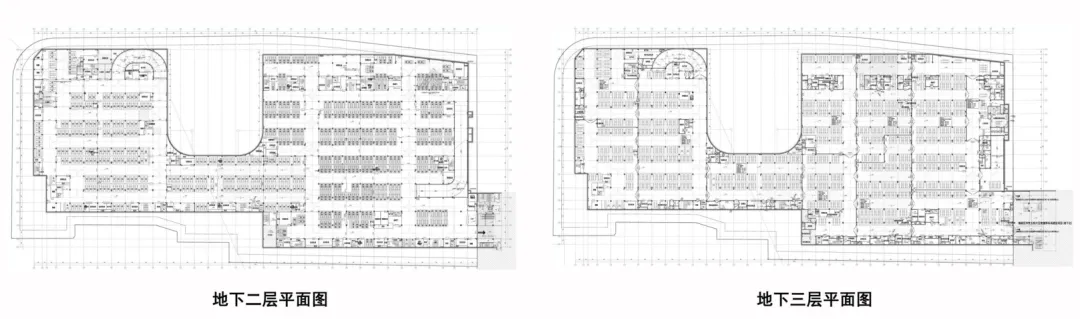
地下二层、地下三层为停车场,总建筑面积约4.95万平方米,设置有1079个机动车停车位,有望缓解市立五院周边的停车难问题。

顺便提一句,除了本次发布的地块,槐苑文化体育公园项目实际上还包含北侧的槐荫体育场。就在本月上旬,济南市发布了槐荫体育场地块建设项目EPC资格预审公告(代招标公告)。当时的公告显示,该项目合同估算价约9.5亿元,工程规模约6.52万平方米,计划工期为607日历天。总的来说,槐苑文化体育公园整体完工后,将会对周边居住品质有一个较大的提升。