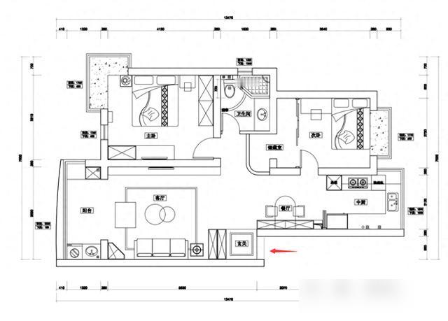
谁懂啊!现在独居女孩装房子,居然有人敢拒绝全网爆火的奶油风?上海一姑娘独居85㎡,偏不跟风选温馨的奶油风,反而把空间化繁为简做极简,完工后说“特别有安全感”。 其实独居的安全感哪是装出来的?不是跟风用热门风格,是自己住着舒服才最重要啊!那些千篇一律的奶油风再暖,也不如自己喜欢的极简来得踏实——毕竟房子是住给自己的,不是装给别人看的。 咱中国人过日子,不就是图个“自己舒服”的实在劲儿吗?你们觉得独居装修,是选热门风格还是自己真正喜欢的?











谁懂啊!现在独居女孩装房子,居然有人敢拒绝全网爆火的奶油风?上海一姑娘独居85㎡,偏不跟风选温馨的奶油风,反而把空间化繁为简做极简,完工后说“特别有安全感”。 其实独居的安全感哪是装出来的?不是跟风用热门风格,是自己住着舒服才最重要啊!那些千篇一律的奶油风再暖,也不如自己喜欢的极简来得踏实——毕竟房子是住给自己的,不是装给别人看的。 咱中国人过日子,不就是图个“自己舒服”的实在劲儿吗?你们觉得独居装修,是选热门风格还是自己真正喜欢的?











作者最新文章
热门分类
时尚TOP
时尚最新文章